#142 – Tours Python à Paris 20eme
Rénovation lourde des 3 tours Python – 234 logements et logement séniors
Réemployer le patrimoine
Les trois tours Python de 1960 surplombaient la ville moderne : belvédère sur la ville où on entre par le haut, en dominant le coteau, l’espace libre et verdissant. Elles effacent les anciennes fortifications Thiers et la « Zone » qui l’a suivie. Véritables points de repère dans la ville, cette trinité moderne a été bousculée par l’arrivée du périphérique puis par les différentes opérations venues l’encercler.
L’isolement monumental n’est plus. Les tours Python s’inscrivent maintenant dans une ville densifiée, à leur mesure, ou presque. Le projet proposé s’attache ainsi à nouer ces liens, à proposer une nouvelle continuité urbaine et architecturale, du sol aux façades et jusqu’au couronnement.
Ce qui frappe quand on visite les tours Python c’est le bon état général des bâtiments et plus particulièrement de leur enveloppe. Les logements existants ne sont certes plus au niveau des attentes actuelles même s’ils présentent une habitabilité fonctionnelle évidente. Halls d’entrée mis à part, les parties communes en étages sont simples et qualitatives, plus particulièrement les escaliers. Les rez-de-chaussée paraissent fermés sur la ville et l’habitabilité des halls est incertaine. Le rapport au sol se résume à un enfoncement massif et opaque dans la pente.
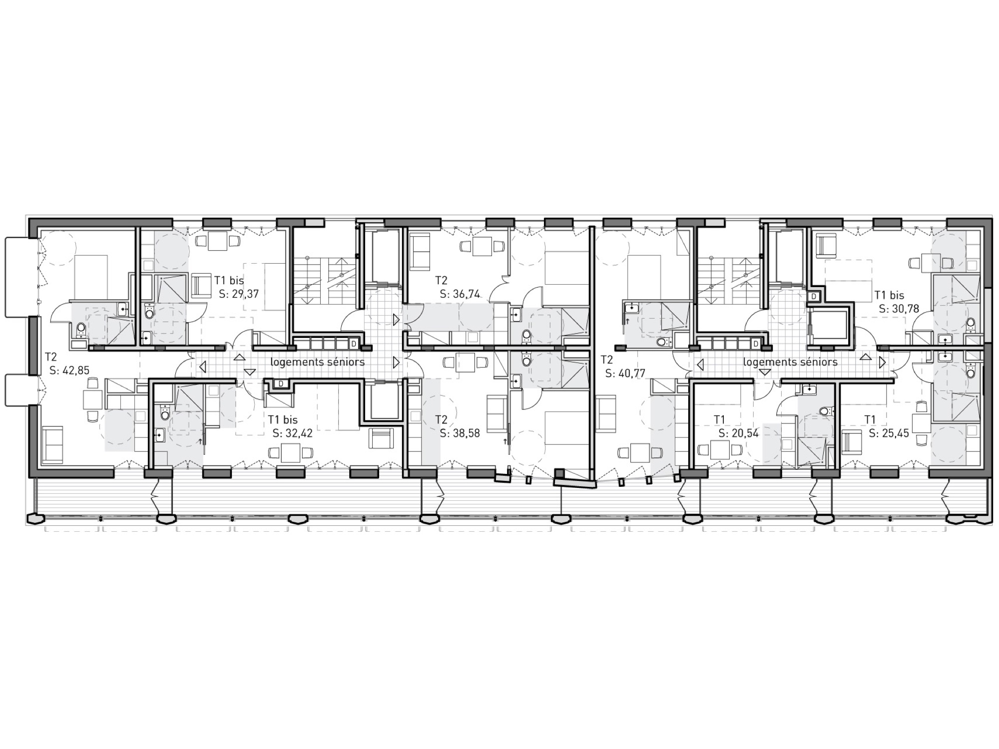
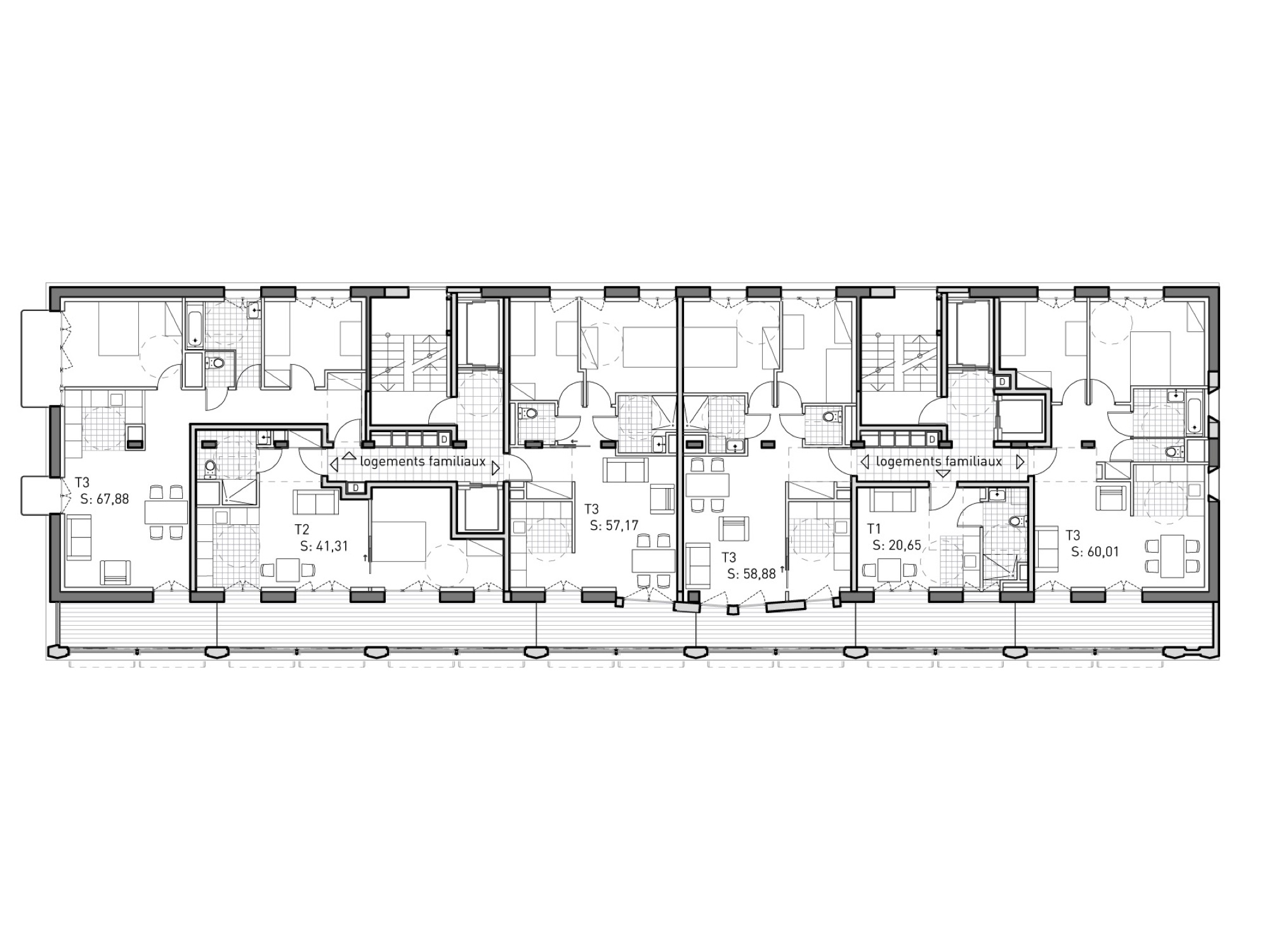
Les tours présentent une organisation basée sur une trame fonctionnelle composée de 2,60 m et 3,12 m correspondant à la succession de chambres et de séjours, le bloc cuisine + salle de bain, minimal, étant intégré dans cette trame.
En façades les tours sont cerclées par des nez de dalle formant bandeaux et sont ponctuées de trumeaux en béton et pierre de parement de 8 cm selon la rythmique fonctionnelle des pièces du logement.
Empreint du rationalisme moderne, c’est une écriture simple, présentant une qualité constructive opérante, pour un ensemble de bâtiments résilients.
Aujourd’hui, s’impose la question de la seconde vie du bâti ancien, d’autant plus quand il présente des qualités architecturales et une pérennité attestée.
Nous avons pris le parti de nous approprier les bâtiments d’Edouard CREVEL et d’abonder sa matérialité originelle, à la recherche d’une évidence architecturale autant que qualitative.
Coté sud, l’épaississement de façade est imaginé en prolongement, selon une trame régulière qui répond à la trame fonctionnelle principale et à celle sous-jacente du pied de la tour : poteaux en pierre massive, chainage et rives en béton, planchers en bois. Cette nouvelle trame se développe jusqu’en pied du bâtiment et permet de matérialiser la présence architecturale du socle avec ces portiques en béton se retournant sur toutes les façades, y compris dans la transparence du hall d’entrée.
La trame du socle du bâtiment est mise en valeur et la succession des portiques donne aux tours un ancrage dans la topographie, matérialisant les usages : entrées, activités, associations, commerces, etc.
La nouvelle entrée au Nord se singularise de l’existant. Ouverte sur la ville, avec un hall traversant, elle manifeste la réappropriation du rationalisme moderne dans une écriture contemporaine tramée alternant pierre massive et vitrage, attentive au détail.
Coté Nord, la trame fonctionnelle en superstructure est conservée, modifiée pour mettre les escaliers en conformité et engager un dialogue heureux avec la nouvelle entrée.
La façade Est, la plus exposée aux bruits et par ailleurs mise en vis-à-vis de bureaux est redéfinie avec des baies oculus éclairant cuisines et salles de bain.
Les escaliers et la structure générale du bâtiment sont conservés. Les ascenseurs sont remplacés mais les interventions sur la structure existante sont réduites à minima. L’épaississement de la façade en jardins d’hiver s’inscrit dans une continuité matérielle pour une pérennité en cohérence.
Quai Python, ZAC Python Duvernois
Année 2026 – Concours
Client RIVP
Programme : Rénovation lourdes de 3 tours R+11 comprenant 234 logements logements séniors.
Surface 10.470 m2 SHAB, 13.802 m2 SDP.
Coût 38,5 M€ HT
Partenaires
ELLENA MEHL Architectes Mandataire
BIOTOPE (Fluides et environnement) MAKE (Structure) ECO+Construire (Economie) ECO+Carbone (Eco circulaire), ALHYANGE (Acoustique) Batiss (CSSI) GALENA (Dépollution)
Perspectives 3D : Virtuell
Cerqual Habitat et rénovation
Eco-conception :
Matériaux biosourcés, Pierre porteuse et semi-porteuse, Réemploi, conservation optimale du bâti existant.
Mots clefs
Tours, Pierre porteuse, réemploi

