#118 – MJC Mercoeur et résidence étudiante
Construction neuve d’un centre d’animation et d’une résidence étudiante.
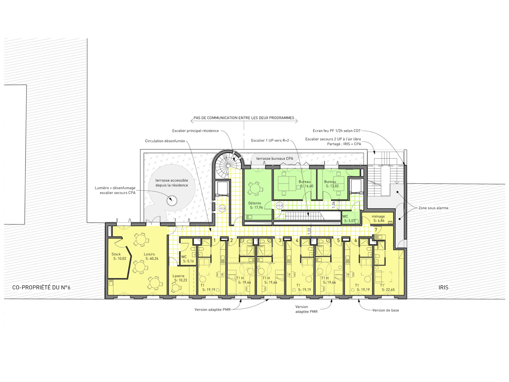
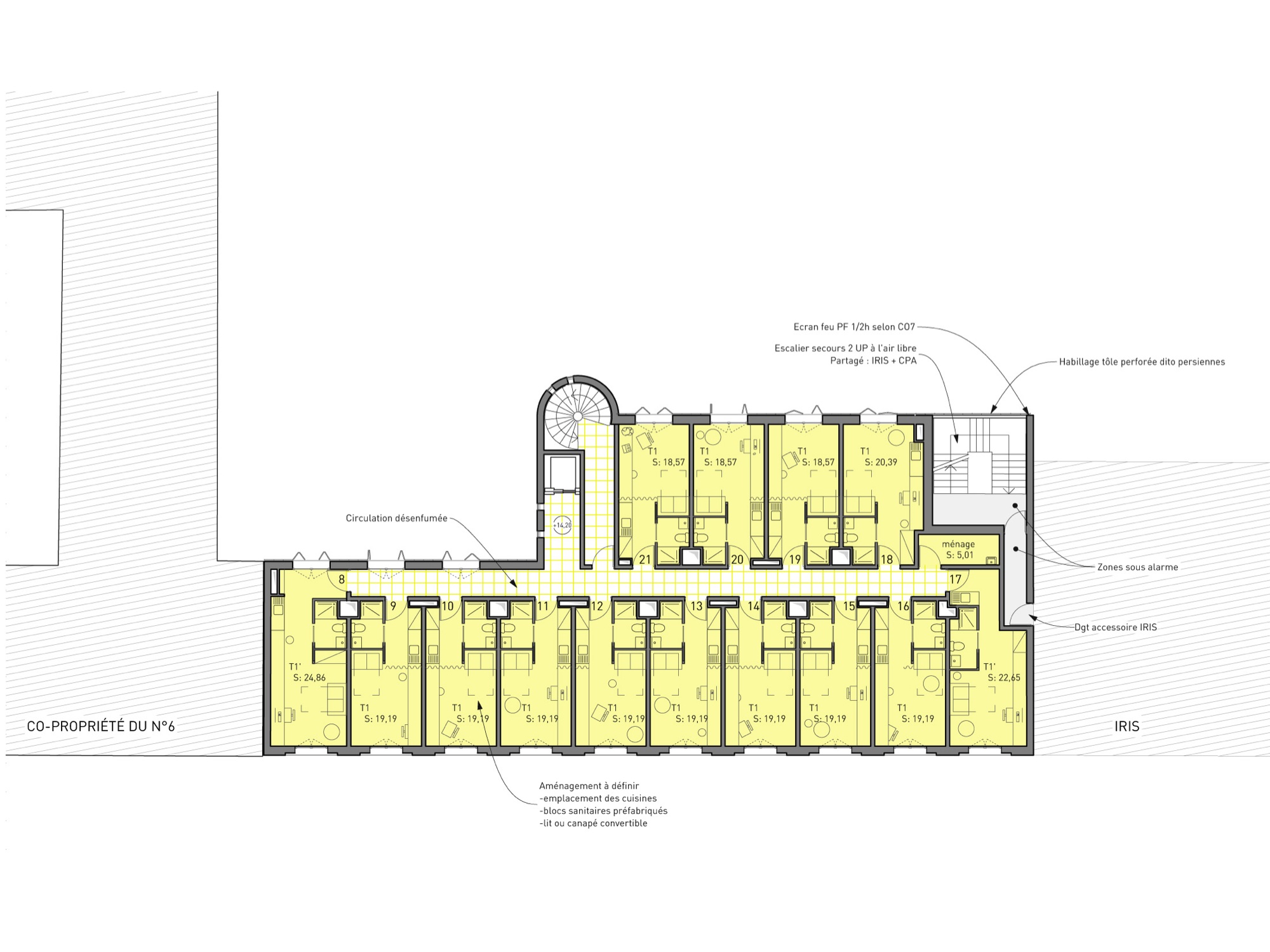
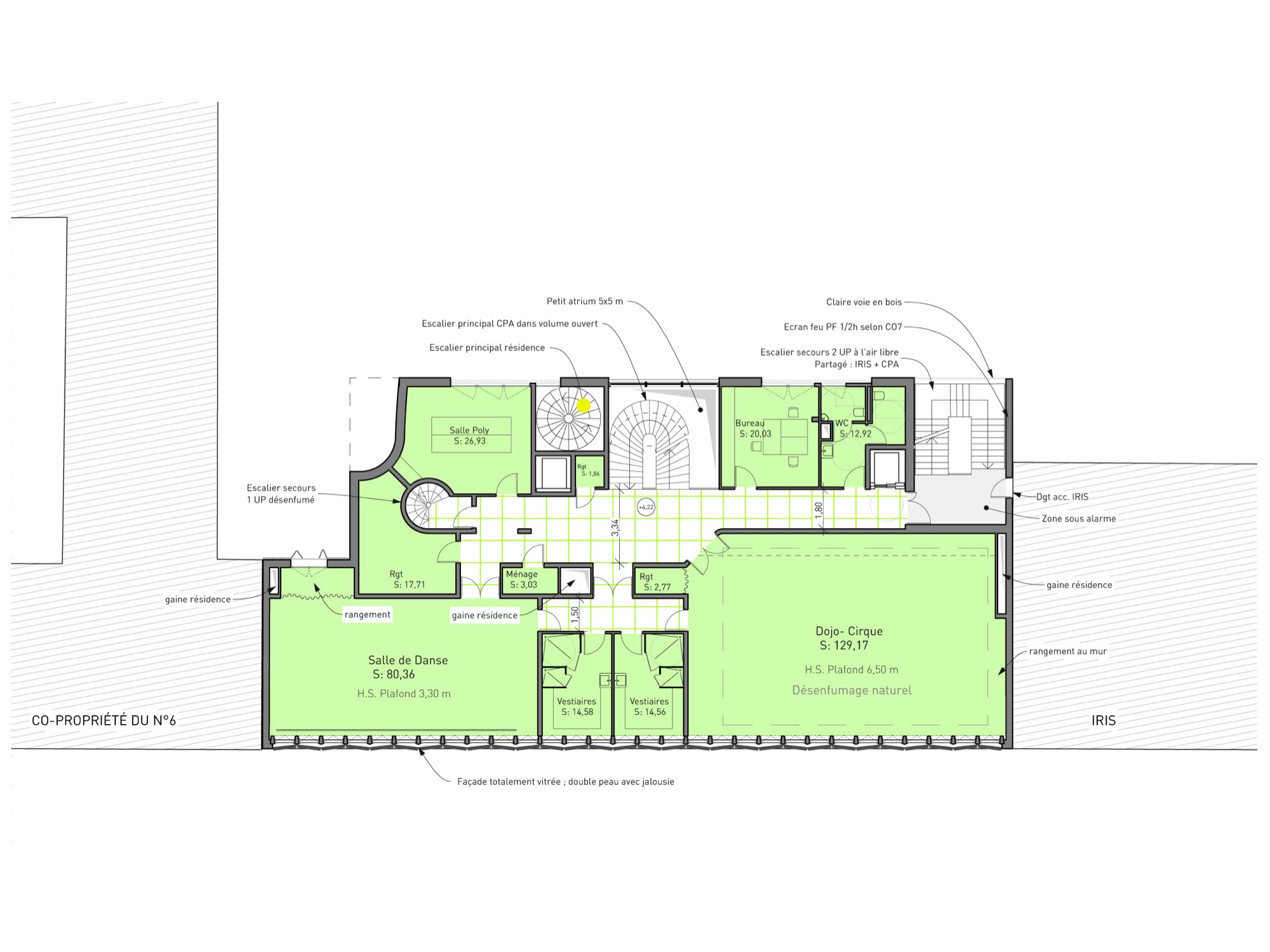
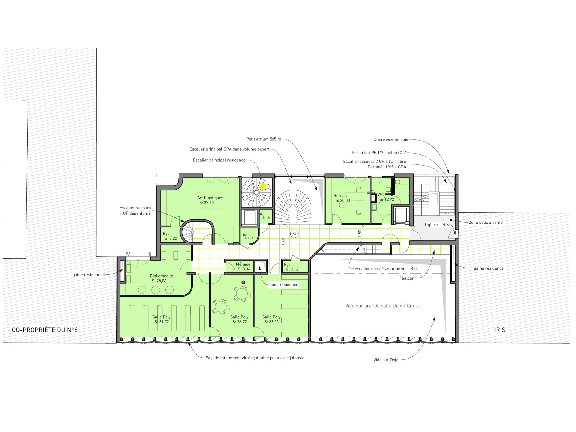
Résidence étudiante et MJC
Le centre d’animation Mercoeur est habité par l’histoire du quartier.
Cela est immédiatement perceptible lors de la visite des lieux. On perçoit l’appropriation du lieu par les habitants, cet esprit « tiers lieu » qu’il est si difficile de réussir.
La dimension du projet s’inscrit dans la continuité existante : que ce soit les ensembles HBM voisins ou les immeubles faubouriens, on retrouve des échelles de bâtiments de dimensions comparables et conséquentes avec des façades de plus de 30 m. S’ajoute une diversité typologique avec des hôtels industriels comme le bâtiment de l’IRIS.
Le projet trouvera donc naturellement sa place dans cet environnement.
Les attentes et la densité du programme nécessitent toutefois d’occuper à plein la volumétrie constructible disponible ce qui conduit à un projet d’importance, avec par ailleurs une question sur les niveaux de planchers du CPA qui ne s’inscrivent pas dans les « standards » parisiens.
La continuité urbaine s’opère par le jeu de superposition des éléments du projet, dans la gradation du rez-de-chaussée vers la superstructure et un par habile effet d’effacement des nivellements.
Nous proposons un soubassement à la matérialité expressive, un corps vibrant de lumière et de reflets et un couronnement à la rigueur géométrique toute faubourienne.
La résidence étudiante n’est pas posée sur un socle, mais se déploie à partir d’une gradation d’écritures architecturales élégantes qui forment un contrepoint de belle facture.
Le rez-de-chaussée est poreux et traversant – il présente une matérialité tactile forte exprimant de manière chaleureuse une architecture écologique.
Le Centre d’Animation est ancré dans son site, dans son paysage social et urbain. Il est terrestre, et pourtant il loue la porosité et la transparence.
Il rassemble et unifie à la hauteur du piéton coté rue, il est le décor d’un square qui se cherche – et se trouvera. Cette matérialité fait lien avec l’espace de la rue et le passage quotidien du trottoir.
Coté rue, c’est une grande façade unifiée en béton de site, louant le réemploi de l’existant, rythmée par 3 arches différenciées : l’entrée du Centre d’animation, l’entrée de la résidence et le porche d’accès au square.
Cette matérialité du rez-de-chaussée est couronnée par une façade de verre facettée qui joue des reflets de la ville et des arbres et forme un horizon à l’entresol.
Par dessus un immeuble d’habitation à l’écriture simple et rigoureuse à l’image du bâti faubourien. Fait de pierre, ou de brique.
Ces 3 étagements de la rue proposent une stratification à l’image du projet : un RdC poreux et actif ouvert sur la ville, un étagement intermédiaire qui exprime la vitalité et l’animation, un immeuble d’habitation à la trame rigoureuse et pérenne.
Coté cour, on retrouve notre soubassement terrien, mais dans un développement tout vertical, pour ouvrir le regard vers le ciel, vers les arbres, vers l’échappée visuelle offerte par le square.
Une série d’arches verticales, formant arcades, à la manière d’un aqueduc, constitue l’arrière plan du square et l’écrin de la diversité des pratiques du Centre d’Animation.
Une des arches, coupée à demi, semble s’épanouir vers le ciel. C’est le débouché du porche d’accès au square depuis la rue. Cet étrange jeu d’intersections de volumes pleins et vides interroge le passant et semble comme une invitation à la traversée, offrant un chemin naturel pour la lumière.
Une autre arche révèle l’animation du centre par son escalier central, remarquable et singulier.
On la perçoit d’ailleurs en traversée depuis la rue Mercoeur, on y devine la richesse de la vie intérieure.
Les autres arches accompagnent le projet : salles d’activités, bureaux, mais aussi discrètement la circulation verticale de la résidence étudiante. La recherche d’unité dans la composition en forme d’arcades permet de proposer un arrière plan original au square, à la manière d’une composition romantique dans un paysage de ruines anciennes.
La résidence étudiante est unifiée par un revêtement de persiennes métalliques mobiles qui permet d’effacer la composition des ouvertures au profit d’une unité de la composition de la cour, mettant ainsi en valeur le socle et ses arcades.
Le noyau d’escalier vient ponctuer la composition d’un trait vertical paré de végétal.
L’escalier se présente comme une portion d’arche posée à plat, il participe à l’animation du rythme architectural de la cour en recoupant le bâtiment dans la verticale.
L’inscription urbaine coté rue s’opère de manière tactile par la matérialité du socle où les arches répétées créent une scansion programmatique et unifiée. L’arche exprime à sa manière sa capacité à porter les programmes multiples. L’entresol que l’on retrouve parfois dans l’immeuble haussmannien des quartiers commerçants, exprime par le jeu des transparences l’offre d’animation et la diversité des pratiques.
La régularité de la trame est contrebalancée par la liberté de positionnement des arches et le caractère brut et aléatoire de la matière du socle.
C’est une expression urbaine singulière par le programme accueilli, mais qui s’inscrit dans une continuité urbaine à l’échelle du quartier.
Coté cour, la composition est plus complexe.
Il est vrai que la volumétrie imposée par les retraits et le périmètre Zone Verte du square nécessite un travail d’écriture plus délicat.
Nous avons choisi de mettre en valeur le socle et sa matière dans une composition expressive d’arcades. Mettant à profit la verticalité pour le fonctionnement du site.
Le passage sous proche semble répondre à l’atrium du Centre d’Animation. Et naturellement le reste du programme s’inscrit dans la rangée d’arcades.
Cette expressivité toute terrestre nécessitait une proposition architecturale quasi abstraite pour la superstructure de la résidence. Dans cet esprit nous avons esquissé une façade de persiennes repliables. Une combinaison de plans fixes et mobiles, semi-réfléchissants pour une composition mettant en valeur le square, le socle et la complexité du cœur d’ilot.
4 rue Mercoeur, Paris 11è (75)
Année : Concours 2022
Client ELOGIE SIEMP
Programme : Centre Paris Anim’ et résidence étudiante de 45 logements
Surface SDP 1153 m2 logts + 1341 m2 CPA
Coût 6,4 M€ HT
Partenaires
BETOM Ingénierie (TCE), Cap Terre (HQE) ABC Décibel (acoustique)
Perspective : Alexandre BESSON
Certification NF Habitat – BBC Effinergie Profil Bas Carbone – Plan Climat Ville de Paris / BEE
Eco-conception :
Matériaux biosourcés, structures mixtes bois, béton de site,
.
Mots clefs
Lieu culturel , résidence étudiante.

